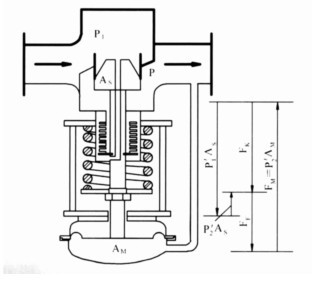
无平衡元件自力式压力调节阀的结构及其静态力平衡分析见图2,当工作点设定好以后,弹簧的预 载一直增加,直到达到能够控制系统所要求的设定值:
FF=FM-FK=kF・x=P2AM-ΔPAS
(1) ΔP=P1-P2式中
FF———弹簧力;
kF———弹簧刚度;
x———弹簧压缩量;
FM———作用于膜片上的力;
FK ———作用于阀芯上的力;
AM———膜片面积;
ΔP———上下游压差;
AS———阀座面积。
由式(1)可知,系统的扰动变量是上下游压力差ΔP,流体通过阀体部件,上下游压力分别作用于阀芯阀杆上,阀芯受到静压和动压所产生的作用力,如果压力差很大或阀座直径大由此产生的阀芯力也就很大,将会增加阀体内阀芯与阀座之间的静摩擦力和滑动摩擦力。

由于没有采取压力平衡措施,无平衡元件自力 式压差调节阀的性能受调节阀进出口压力变化影响较大,导致调节阀的调节精度和适用压力范围受到 限制。对于单座调节阀,其不平衡力较大,特别在高压差大口径场合不平衡力则更大。为了减少不平衡力的不利影响,提高调节阀性能,在设计中设计了压力平衡系统,即波纹管平衡型自力式压差调节阀(见图3),通过引压管将调节阀进出口压力引入到压力平衡元件———波纹管的内外表面,波纹管将相应的伸长或缩短,从而平衡了阀门进出口压差对阀芯的扰动作用力,使调节阀的性能有较大提高。